В ЖК “Наука” имеется и детский сад на 280 мест. и школа на 1125 мест. а также паркинг на 1500 мест. Дворы здесь закрыты от посторонних посетителей, озеленены, есть беседки, а для детей - современные детские площадки.
Здесь отсутствуют квартиры-студии, а лестничные площадки оформлены на контрастах черного, светло-серого и коричневого, что создает атмосферу шика.

Отдельного внимания в ЖК “Наука” заслуживают сами квартиры. Здесь и отверстия под приточную вентиляцию, и разводка на кухнях для множества розеток (у большинства застройщиков только по 2-3), и просторные площади самих кухонь, и панорамные окна в пол во всех комнатах, и французские балконы со стеклянной прозрачной оградой вместо перил, возможность из гостиной иметь панорамный вид на 3 стороны благодаря наличию остекленного мыса (эркера). Все перечисленного приводит в восторг любого.

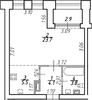
ТИПОВЫЕ ПЛАНИРОВКИ ОБЪЕКТОВ

3 комнатная

Площадь от 79.6 м2

от 23.655.000 руб

ипотечный калькулятор

укажите параметры и рассчитайте ежемесячный платеж

20 500 000 33 900 000
20% 100%
1
1 30
* Расчёты не являются публичной офертой. Конечные условия кредитования определяются банком после рассмотрения заявки
Пожалуйста, укажите телефон
Согласен с политикой конфиденциальности
Необходимо согласие

Наука ЭТО

Используется гамма из 3 цветов: коричного, чёрного и светло-серого, что подчёркивает бизнес статус жилого комплекса.

Дома действительно кирпично-монолитные. Причём используется именно более дорогой пористый кирпич, обеспечивающий и прочность стен и великолепную теплоизоляцию.

Это не 2 розетки на всё помещение, а их изобилие. Причём на кирпичной стене розетки монтированы с запасом под слой штукатурки.

Это не 2 розетки на всё помещение, а их изобилие. Причём на кирпичной стене розетки монтированы с запасом под слой штукатурки.

Сад Бенуа - 600 м,
Парк Сосновка - 1,3 км,
Парк Муринского ручья - 1,6 км,
Парк Политехнического университета 1,3 км.

Престижный ВУЗ Росии технического профиля. До него - 1,3 км. Поэтому ЖК "Наука" подойдёт для студентов данного профиля.

До метро Академическая - 1,2 км. А если перейти Гражданский проспект, то напротив станции метро сразу 3 ТЦ: Академ-Парк, Академический и Торговый двор.

Расположен в саду Бенуа. Интерьер ресторана поддерживает фермерскую стилистику. Детали декора и аутентичные старинные вещицы создают ощущение загородной, спокойной жизни. А вид на Сад Бенуа, в котором находится ресторан, вызывает чувство умиротворенности и удаленности от городской суеты. Соседнее историческое здание с ним - стильный коворкинг.

Расположена буквально через дорогу от ЖК "Наука" по пути к саду Бенуа. Она хоть и муниципальная, но эксклюзивная.

ОНЛАЙН КОНСУЛЬТАЦИЯ

получите больше информации о проекте
и задайте свои вопросы

НЕ НАШЛИ ПОДХОДЯЩЕЕ?

Укажите параметры недвижимости, и мы подберем варианты в течение дня бесплатно

Пожалуйста, укажите телефон
Согласен с политикой конфиденциальности
Необходимо согласие
Написать в мессенджер